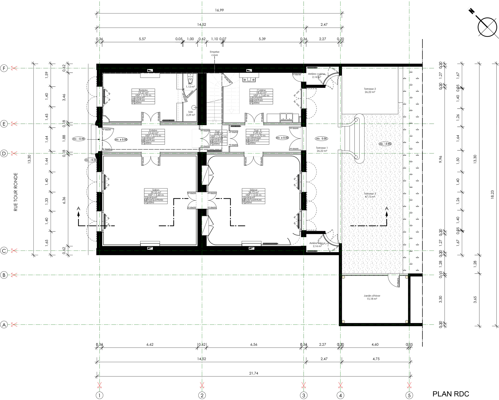
Un sinistre incendie a ravagé les deux premiers niveaux d’une maison de famille, transformée en chambres d’hôtes, sur la commune de Saint Jean d’Angély.
Cette bâtisse, inscrite à l’inventaire supplémentaire des monuments historiques, possédait notamment un salon avec plancher bois et des habillages muraux en marqueterie.

Cette reconstruction se fera en collaboration avec un Architecte en Chef des Monuments Historiques, et des entreprises agréées Monuments Historiques.

Maitre d’ouvrage : PRIVE
Mission : Complète
Objet : Demeure inscrite à l’inventaire
supplémentaire des monuments historiques
Montant des travaux : 1 M€HT
Calendrier : Consultation entreprises en cours

Retour aux réalisations